Kancelář 48 m²
Plocha | Standard | Lokalita | Typ |
---|---|---|---|
od 48m 2 do 48m2 | Fit Out | centrum města | Kancelář |
V administrativní budově v Třebíči máme k dispozici moderní kancelář s výměrou 48 m² umístěnou v 3. nadzemním podlaží. Prostory kanceláře jsou vhodné pro drobné podnikatele a malé firmy. Pronájem je možný IHNED.
Součástí jednotky je balkon s výhledem na Karlovo náměstí. Vstup do budovy vede z hlavní ulice. Samozřejmostí je bezbariérový přístup. V blízkosti sídlí pošta, banka, pojišťovna, pekárna, kadeřnictví a další. Nedaleko se nachází zastávka MHD. V okolí se nachází bary, restaurace a kavárny.
Galerie jednotky
Dobrý servis je součástí našeho portfolia
Specializujeme se na služby v oblasti pronájmu realit, facility managementu, energií, asset managementu. Všechny služby jsou zaneseny do Klientského portálu.
-
Invalida
-
Kuchyňka
-
Mytí oken
-
Parkoviště
-
rekonstrukce
-
Odklízení sněhu
-
Údržba
-
Výtah
Mapa k naší nemovitosti
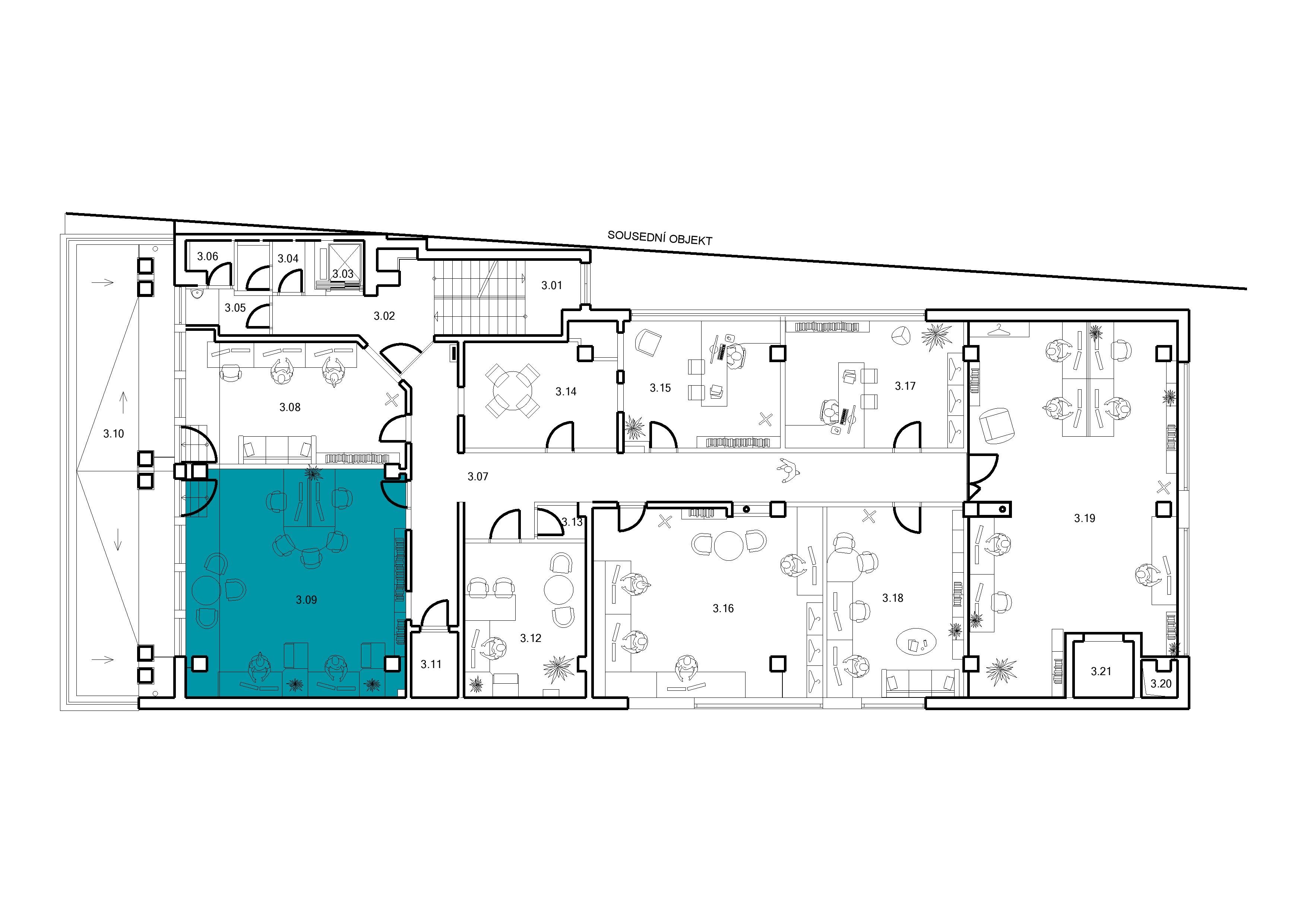
Dispozice a půdorys jednotky
Níže naleznete parametry jednotky, která vás zaujala v Katalogu nemovitostí, portfolia investiční skupiny CREAM.
Podlaží jednotky | 3. NP |
---|---|
Číslo jednotky / ID | TKN-0010 |
Dispozice | |
Užitná plocha | 48m2 |
Lokalita | centrum města |
Kauce | dva měsíční nájmy |
jednotka umístěna v budově
Karlovo náměstí, Třebíč
Budova po kompletní rekonstrukci se nachází v řadové zástavbě na Karlově náměstí historického města Třebíč. Prosklený vchod s hliníkovými rámy tiskne komerční budově punc nadčasovosti. Fasádu zdobí obklady z mramoru a venkovní vstupní schodiště je žulové. V prvním nadzemním podlaží je obchodní jednotka se samostatným vchodem, kterou momentálně využívá Česká spořitelna, v ostatních podlažích jsou reprezentativní kancelářské prostory. V budově je osobní výtah zajišťující bezbariérovost.
-
Bezbariérový
-
Okenní rolety
-
Údržba
-
Výtah